C-9 Flythrough Impression

This project reflects Airways’ long standing commitment to delivering the high-quality living standards that the brand is known for. Designed to combine convenience with lifestyle, the apartments will offer a welcoming home base for the Papua New Guinea NRL, ensuring that athletes and officials have the facilities they need both on and off the field.

Residents will enjoy access to a range of resort-style amenities designed to elevate everyday living, including landscaped recreational areas, modern fitness centre, a swimming pool, and communal outdoor facilities.

Attachments

Tulaniu-o-Atua George Constantinou

Constantinou Group of Companies

Group Chairman and Governing Director

Email: george@constantinou-group.com

David Dunn

Group External Affairs  

 Email: david.dunn@constantinou-group.com

Project Timeline

The Constantinou Group comprises 13 companies and is the only vertically integrated construction, hospitality and asset management group in the South Pacific. This uniquely positions us to build, commission and operate the new residences development within the existing Airways complex. These internal synergies substantially de-risk the construction period, facilitate a faster build time and enhance a smooth commissioning process.



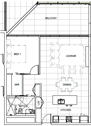
Apartment Floorplans

The thoughtfully designed floorplans showcase a variety of modern apartment layouts, each carefully planned to maximise space, natural light, and functionality. From open-plan living and dining areas to well-appointed bedrooms and contemporary kitchens, every detail has been considered to create comfortable, practical, and stylish residences.There will be a total of 80 bedrooms, 61 2 bedrooms and 11 3 bedrooms.


Architecural Impressions